Apartamento minimalista
يونيو 24, 2010Achei muito charmoso e funcional, esse apartamento projetado pela i29 Architects para uma família de 4 pessoas em Amsterdã na Holanda.
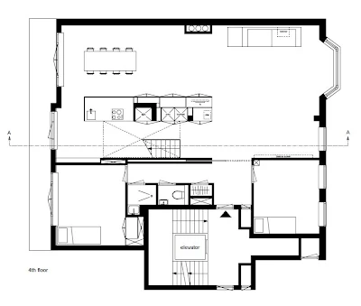
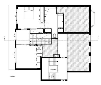
O apartamento tem um projeto que o deixou bem luminoso e arejado. Os armários da cozinha que vai do chão até o teto, recebeu portas com recortes à laser dando além da função de guardar os utensílios e alimentos, também se torna um painel decorativo ao ambiente, o armário recebeu uma pintura em spray branco e alguns dos recortes da porta funciona como pega para abrir. O apartamento tem um átrio aberto com escadas de onde vem a luz natural para a sala de estar. Próximo à escada, temos uma parede de 2 andares toda forrada com a madeira pinus clara dando um ar mais acolhedor ao apartamento.
O banheiro é bem grande, todo azulejado com estruturas de vidro e armários de madeira também.













1 Comments
Excelente! Belíssimo trabalho!
ردحذف