Uma Casinha Minúscula no Quintal
فبراير 20, 2013
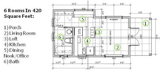
Essa encantadora casinha foi projetada pela New Avenue Homes, com a finalidade de acomodar hóspedes, foi construída no quintal de uma residência.
Ela possui apenas 40 metros quadrados, mas não pense que é uma "caixa de fósforo", tudo em seu interior é muito organizada e é bem charmosa e convidativa, esse tipo de casa é conhecida como "Cottage". Os hóspedes ficam bem instalados com todo conforto que necessitam.






0 Comments